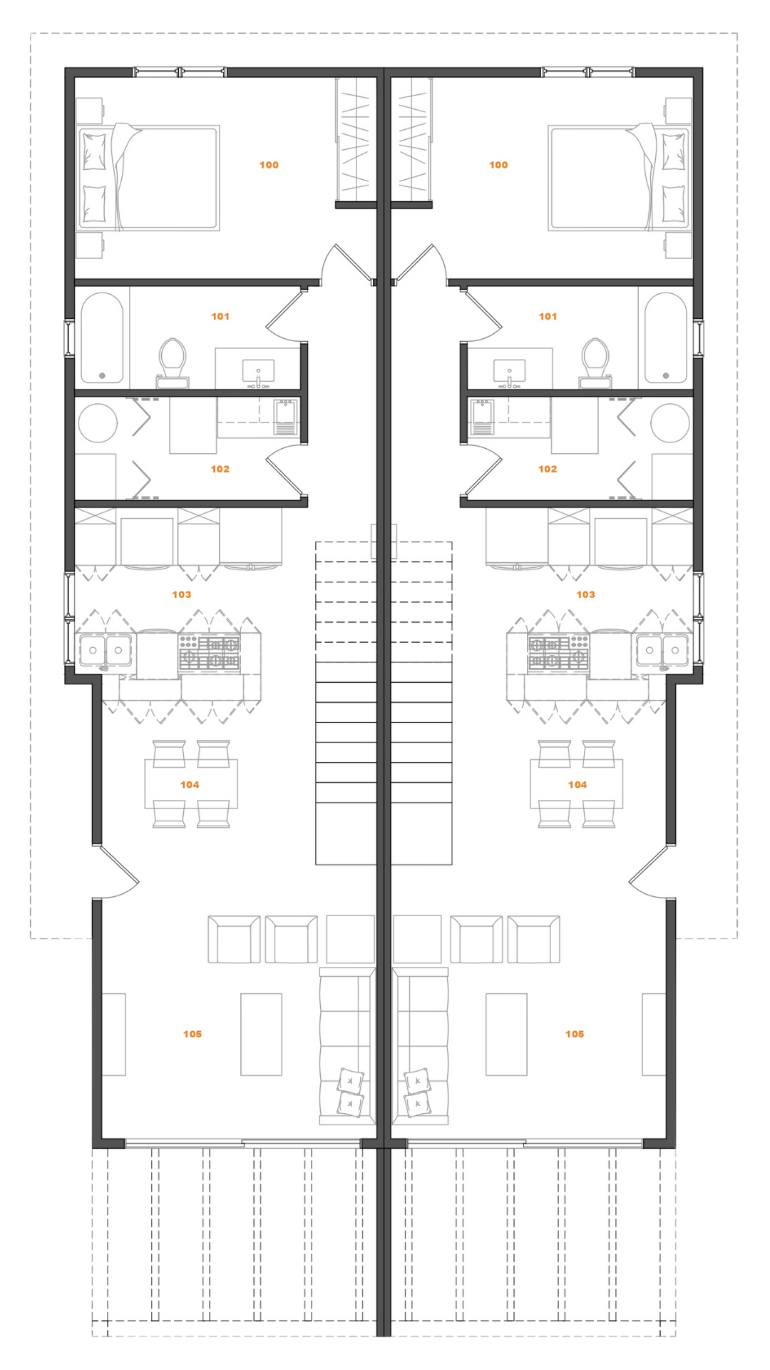
CORAL DUPLEX

LEGEND

100 First Bedroom
101 Bathroom One
102 Laundry
103 Kitchen
104 Dining
105 Living Room
106 Patio
107 Second Bedroom
108 Second Bathroom
109 Master Bathroom
110 Master Bedroom

111 Upper patio

FEATURES

  • CONTEMPORARY COASTAL STYLE DEPICTED

  • TWO STOREY DUPLEX

  • 1743 SQFT

  • 3 BEDROOMS

  • 3 BATHROOMS

  • ATTACHED CARPORT ON SLAB VERSION AS SHOWN

  • OUTDOOR COURTYARD & COVERED DECK

  • AVAILABLE ON SLAB OR RAISED

Exteriors

Interiors

Brochure
Return